氣動保溫球閥產品概述
氣動保溫球閥由一個依靠壓縮空氣為動力源的氣動執行機構和保溫球閥組成,外裝控制系統,通過對電磁閥的通電或斷電,實現閥門全開或全關動作,以達到對管道內易凝固易結晶介質的開放或截斷。該閥在閥體的外表面加焊一層金屬夾套,在夾套上設有保溫加熱流體入口和出口,且在正下方設置有排泄口,當閥門有介質通過時,保溫流體同時也要接入,當閥關閉時,保溫流體在夾套中流動提供的熱量使閥內的介質不凝固或不結晶,確保閥門設備能正常運轉。本產品氣動執行器通常與行程限位開關、電磁閥、空氣過濾減壓閥等附件配套使用,有單作用和雙作用兩種類型,其中單作用式的主要優點是一但動力源發生故障,閥門將按控制系統的要求自動處于開啟或關閉的位置。
氣動保溫球閥部件材料
| 序號 | 部件名稱 | 材料名稱 | ||||
| 1 | 閥 體 | WCB | CF8 | CF3 | CF8M | CF3M |
| 2 | 保溫夾套 | Q235B | 304 | 304 | 304 | 304 |
| 3 | 端 蓋 | WCB | CF8 | CF3 | CF8M | CF3M |
| 4 | 閥 座 | R-PTFE、PTFE、TEFLON、NYLON、PPL、PEEK、DEVLON、SS+HF | ||||
| 5 | 球 體 | 2Cr13 | 304 | 304L | 316 | 316L |
| 6 | 閥 桿 | 2Cr13 | 304 | 304L | 316 | 316L |
| 7 | 填料壓蓋 | WCB | CF8 | CF3 | CF8M | CF3M |
| 8 | 填 料 | GRAPHITE、R-PTFE、PTFE、TEFLON、PCTFE | ||||
| 9 | 彈 簧 | 17-7PH | 17-7PH | 17-7PH | 17-7PH | 17-7PH |
| 10 | 螺 栓 | 35CrMoA | 304 | 304 | 316 | 316 |
| 11 | 螺 母 | 35CrMoA | 304 | 304 | 316 | 316 |
氣動保溫球閥技術參數
| 公稱壓力PN(MPa) | 1.0 | 1.6 | 2.5 | 4.0 | 2.0 |
| 殼體試驗壓力(MPa) | 1.5 | 2.4 | 3.75 | 6.0 | 3.0 |
| 高壓液體密封試驗壓力(MPa) | 1.1 | 1.76 | 2.75 | 4.4 | 2.2 |
| 低壓氣體密封試驗壓力(MPa) | 0.6 | 0.6 | 0.6 | 0.6 | 0.6 |
| 設計制造 | JB/T 13458、GB/T 12237、GB/T 21385、API 608、ASME B16.34 | ||||
| 結構長度 | JB/T 13458、GB/T 12221、ASME B16.10 | ||||
| 法蘭尺寸 | JB/T 79、GB/T 9113、HG/T 20592、HG/T 20615、SH/T 3406、ASME B16.5等 | ||||
| 檢驗試驗 | GB/T 13927、GB/T 26480、JB/T 9092、API 598 | ||||
| 可配附件 | 行程限位開關、電磁閥、空氣過濾減壓閥、手輪機構等 | ||||
| 氣源壓力 | 0.4MPa ~ 0.7MPa | ||||
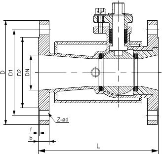
氣動保溫球閥主要尺寸
| 公稱壓力 PN | 公稱通徑 DN | 外形及連接尺寸/mm | |||||
| L | D | D1 | D2 | b-f | Z-?d | ||
| 16 | 15 | 140 | 95 | 65 | 45 | 16-2 | 4-14 |
| 20 | 140 | 105 | 75 | 58 | 18-2 | 4-14 | |
| 25 | 160 | 115 | 85 | 68 | 18-2 | 4-14 | |
| 32 | 165 | 140 | 100 | 78 | 18-2 | 4-18 | |
| 40 | 180 | 150 | 110 | 88 | 18-2 | 4-18 | |
| 50 | 200 | 165 | 125 | 102 | 18-2 | 4-18 | |
| 65 | 220 | 185 | 145 | 122 | 18-2 | 8-18 | |
| 80 | 250 | 200 | 160 | 138 | 20-2 | 8-18 | |
| 100 | 280 | 220 | 180 | 158 | 20-2 | 8-18 | |
| 125 | 320 | 250 | 210 | 188 | 22-2 | 8-18 | |
| 150 | 360 | 285 | 240 | 212 | 22-2 | 8-22 | |
| 200 | 400 | 340 | 295 | 268 | 24-2 | 12-22 | |
| 表中未列出的其他規格尺寸,請咨詢汗越閥門技術部! | |||||||
氣動保溫球閥結構圖

網站首頁